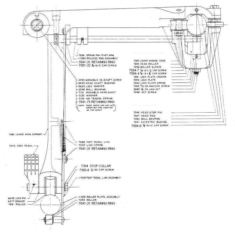
1-7280 Lower Movable Winding Head Assembly
Click here for an enlarged version of this drawing