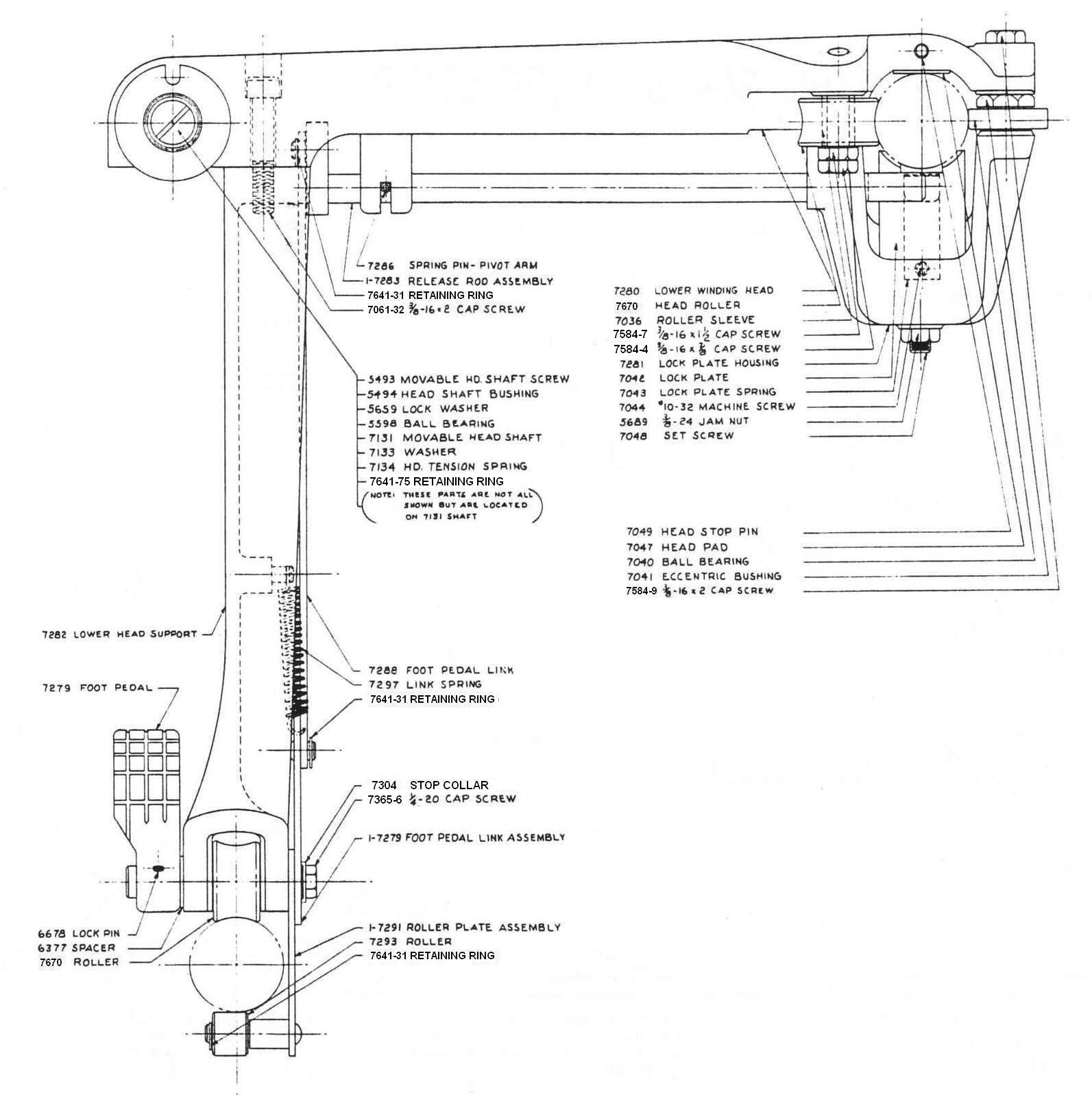
1-7280 Lower Movable Winding Head Assembly -- Enlarged