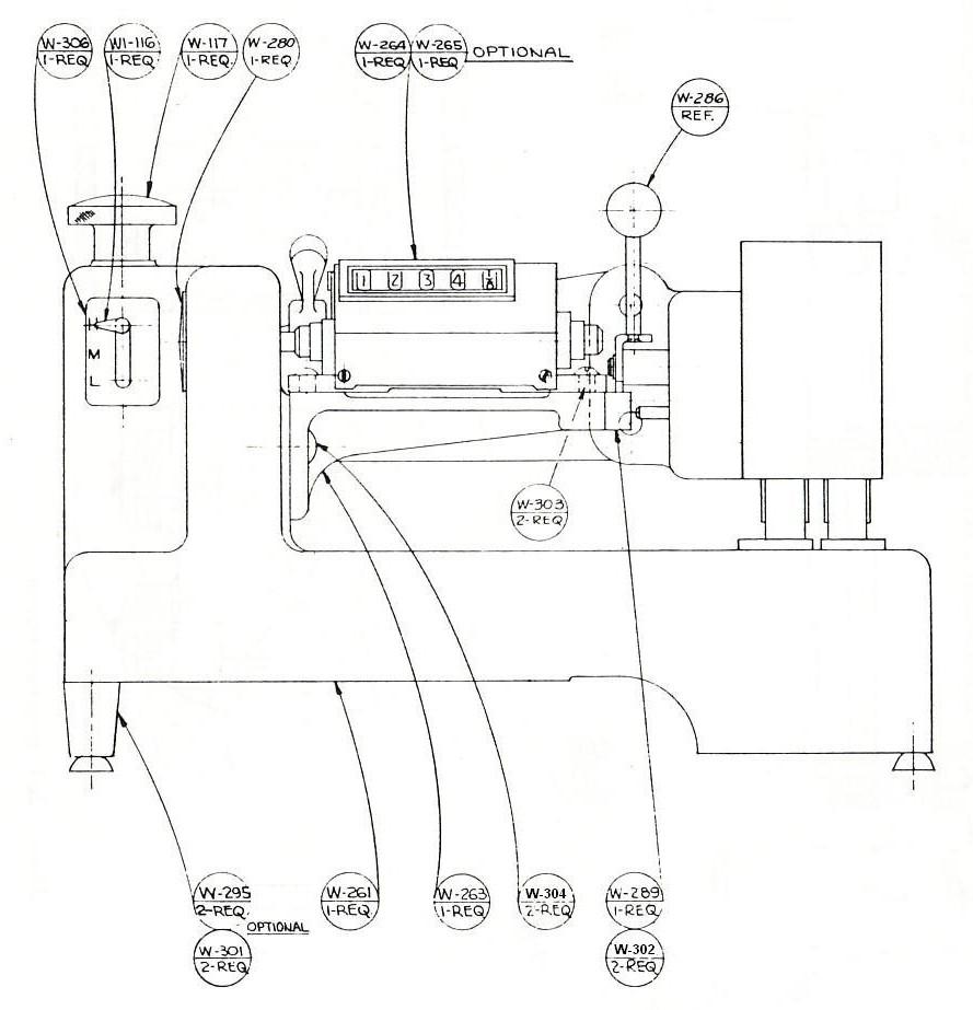
MEASUREMASTER MODEL 261 -- Front View

Click
here
for
left
end
view

Click
here
for
right
end
view