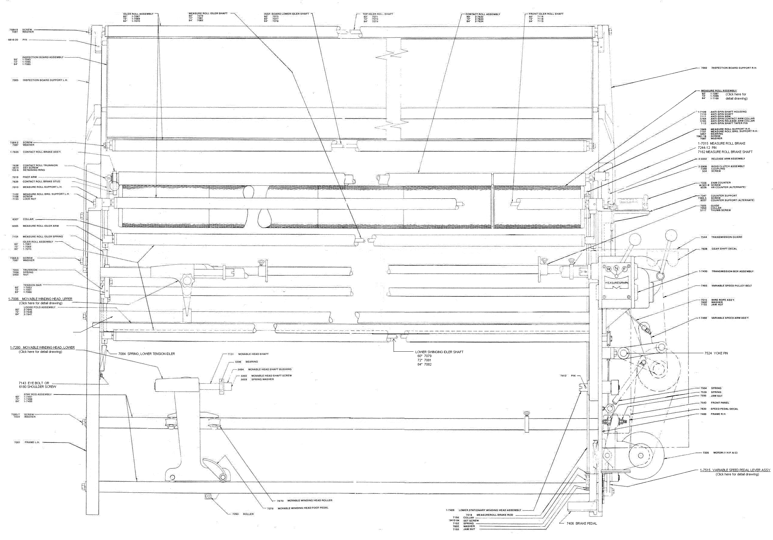
MODEL 564 REWINDER -- Front View
Click here to open a larger view of this drawing
Click here to open the end view in a new window.

Click here for detail view Click here for detail drawing Click here for detail drawing